The Overhang ADU
The Overhang ADU
Elevated Living with Exceptional Views
Introducing The Overhang ADU, a perfect fusion of functionality and aesthetic appeal. Designed for those seeking a lucrative rental opportunity while providing the convenience of off-street parking, this ADU stands out with its unique over-garage design and captivating neighborhood views.
Key Features:
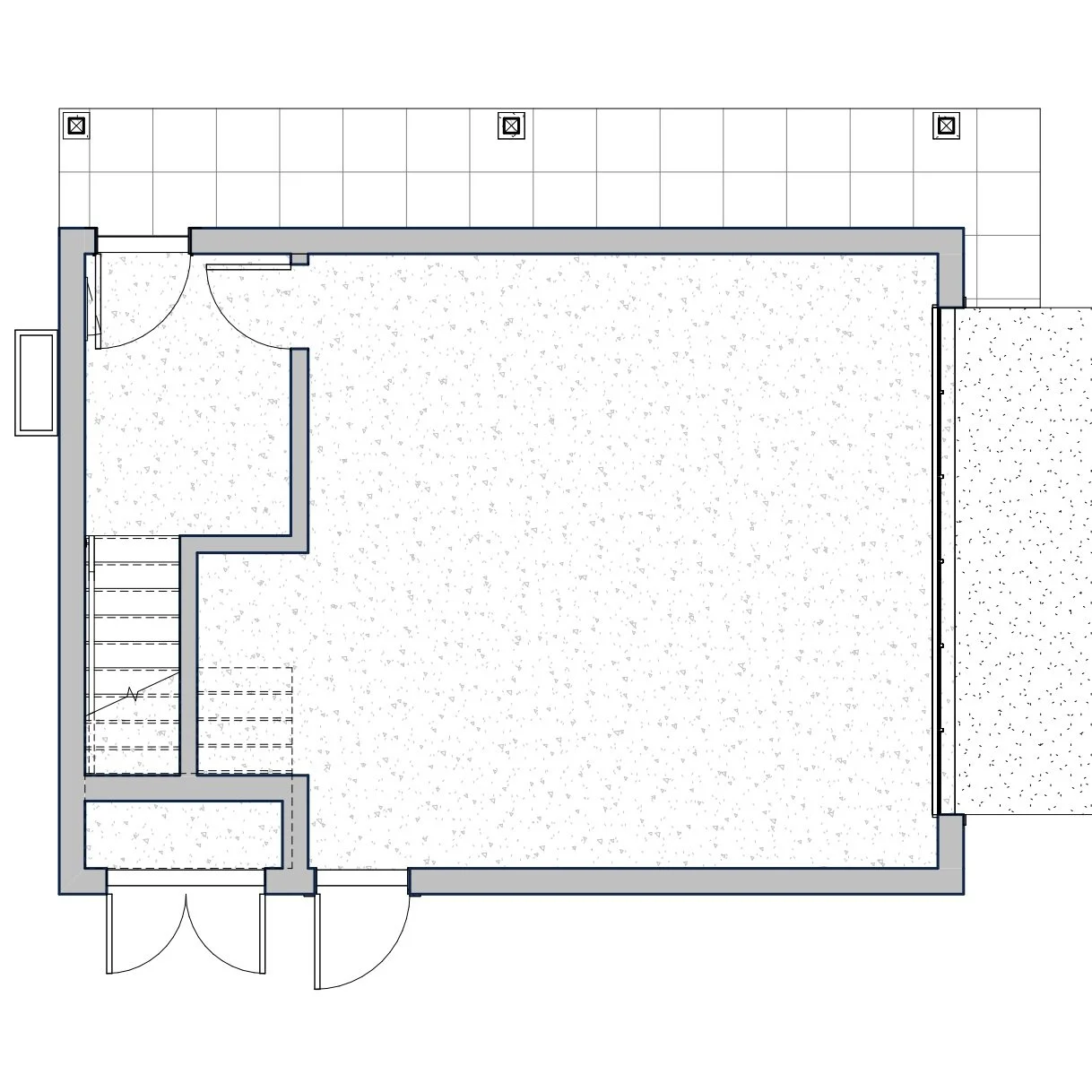
Dimensions:
Footprint: Spacious layout spanning 24’-3” in width and 30’-5” in length.
Height: Majestically reaches 23’-10” at its peak, offering a grand perspective.
Layout:
Configuration: Thoughtfully designed with two bedrooms and one bathroom, encompassing 775 square feet.
Garage: A practical two-car garage under the living space, perfect for off-street parking and additional storage.
Facilities:
Bedrooms: Two cozy, well-lit rooms offering comfort and privacy.
Bathroom: A modern, well-equipped space designed for convenience.
Living Area: A bright and airy space boasting large windows that frame the stunning views and enhance the feeling of openness.
Why Buy This ADU Plan Set:
Although custom designed ADUs are the right approach for many families, to make beautifully designed ADUs more affordable and accessible for people of all income levels, pre-designed ADU plans gives you an option to get a wonderful design at a greatly discounted price. This ADU was designed as a great rental unit, Airbnb, or guest house and is simple and economical to build. Its compact footprint also makes it fit in almost any backyard.
Where a custom designed ADU would cost about 10% of your project budget - typically between $20,000 and $40,000 - buying a predesigned plan saves you thousands of dollars. On top of the financial benefits, pre designed ADU plans save months of time as the bulk of the design work is already complete.
What Else You Will Need:
Every site is unique and each local jurisdiction has their own set of rules and regulations. You will need to do the due diligence to make sure the design you purchase is allowed on your property. You may also need to get structural engineering and/or engage other consultants to provide information your local regulations require. We also recommend that you hire a local designer, architect, engineer, and/or general contractor to assist with the permitting process and work through any revisions you may need in order to receive permit approval.
In California you will also need a Title 24 report. We can help coordinate this. After making a purchase, reach out and let us know if you need assistance coordinating a Title 24 report for your ADU project.
What Comes With The ADU Plans Purchase:
To help you move your project forward quickly, when purchasing this design you will get both a PDF of the design drawings as well as CAD files that you can use to edit or revise the design to fit your needs.
ADU Design Revisions:
Our team can help make design revisions if you need assistance. Reach out and describe what changes you are looking for and we will put together an estimate for the scope of work.
Terms and Conditions:
Please read these important Terms and Conditions.
What do you get when you purchase ADU plans?
Once a purchase is made, you will be given a link to download a ZIP file that includes both a PDF of the selected design drawings as well as CAD files of the drawings. The drawing set will include the following information:
Cover Sheet – Includes a a perspective view of the accessory dwelling unit design, and the title block.
Notes, Terms & Conditions – The terms and conditions that govern the use of the drawings.
Legends, Schedules, and Standards - All of the notes, abbreviations, and definitions that are used in the drawing set, plus door, window, and room schedules.
Plans – Fully dimensioned drawings showing all of the rooms, sizes, and plan detail callouts, including a roof plan and foundation plan.
Elevations – Exterior views of the ADU showing siding, windows and doors.
Interior Elevations - Views of the main interior walls of the bathroom and kitchen to show placement of fixtures, tiles, etc.
Sections – sectional view cutting through the project in each direction.
Details – Detail drawings of the project to describe the construction and assemblies of the main features of the ADU.
A Modern ADU Plan set helps you:
Access beautifully designed ADUs in an affordable package.
Interview local builders and get more accurate construction cost estimates or bids.
Save time when compared to a custom designed ADU process
Start your project with proven designs that blend functionality, cost effectiveness, and beauty.
Facilitate you working with local engineers or architects to get your plans stamped and ready for permitting.
Work with consultants to dial in the mechanical, plumbing, and electrical systems and details.
Achieve a high-end ADU that can increase your property value.
Generate passive income through renting out your new ADU
















